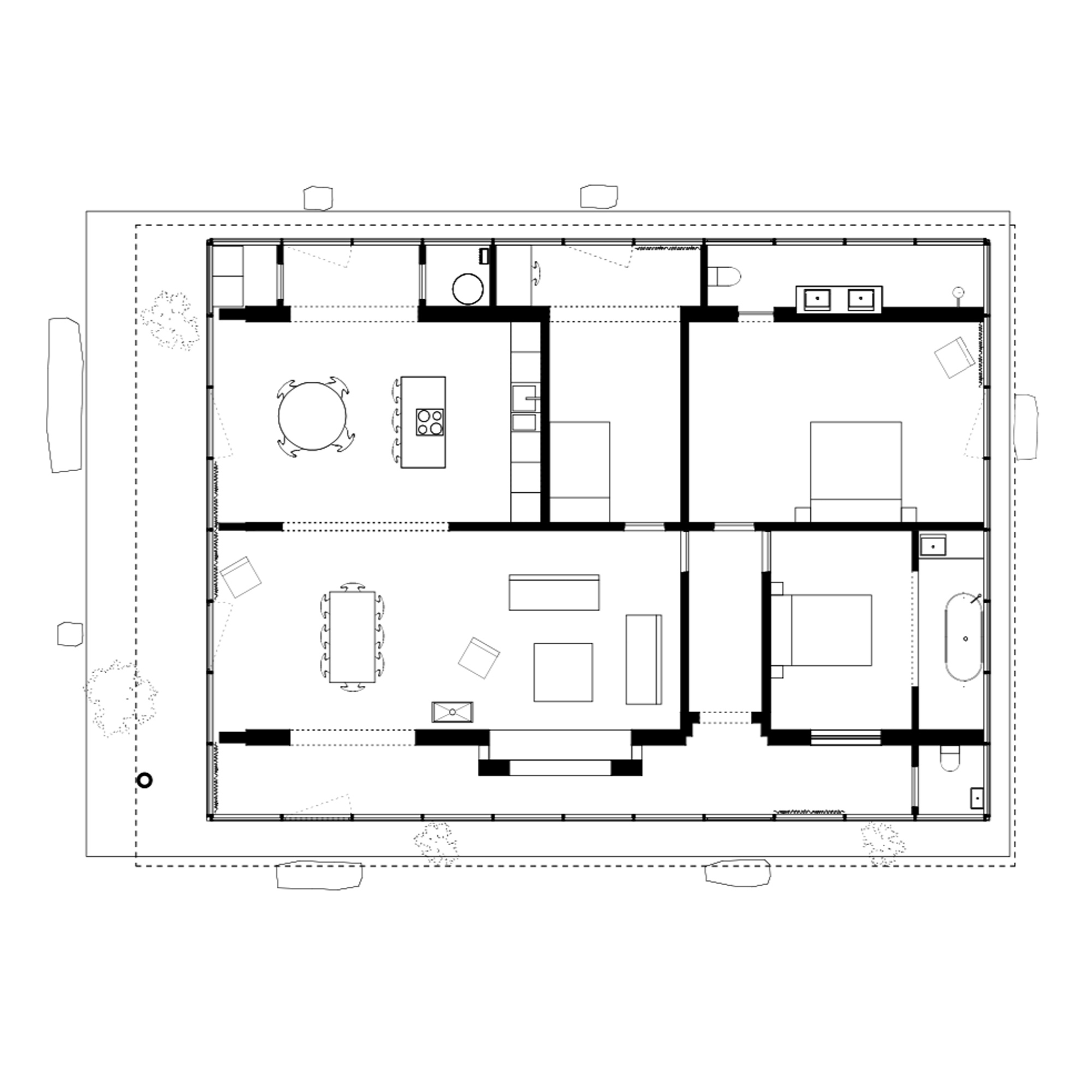
The project, situated in the periphery of Brussels, transforms a 60’s pitched roof red brick house by wrapping it with a new glass façade, a concrete plinth and a new flat roof. The new perimeter defined by the glass façade stands at an offset of 1m30 off the old walls creating an in-between space that houses the technical functions in order to free space for living rooms. The winter garden, bathrooms, toilets and washing machines are also placed in the in between space and serve as a filter from the garden to generate interstitial space that mediates between the garden and the core of the existing house.

Year

2017-2020

Location

Linkebeek, Belgium

Type

Single family house, extension

Status

Built

Surface

172m2

Client

Private

Design Team

Santiago Giusto, Nelson Van Campenhout, Maxime Descheemaecker, Thibaut de Smet.

Photography

Maxime Delvaux

[ CLOSE ]