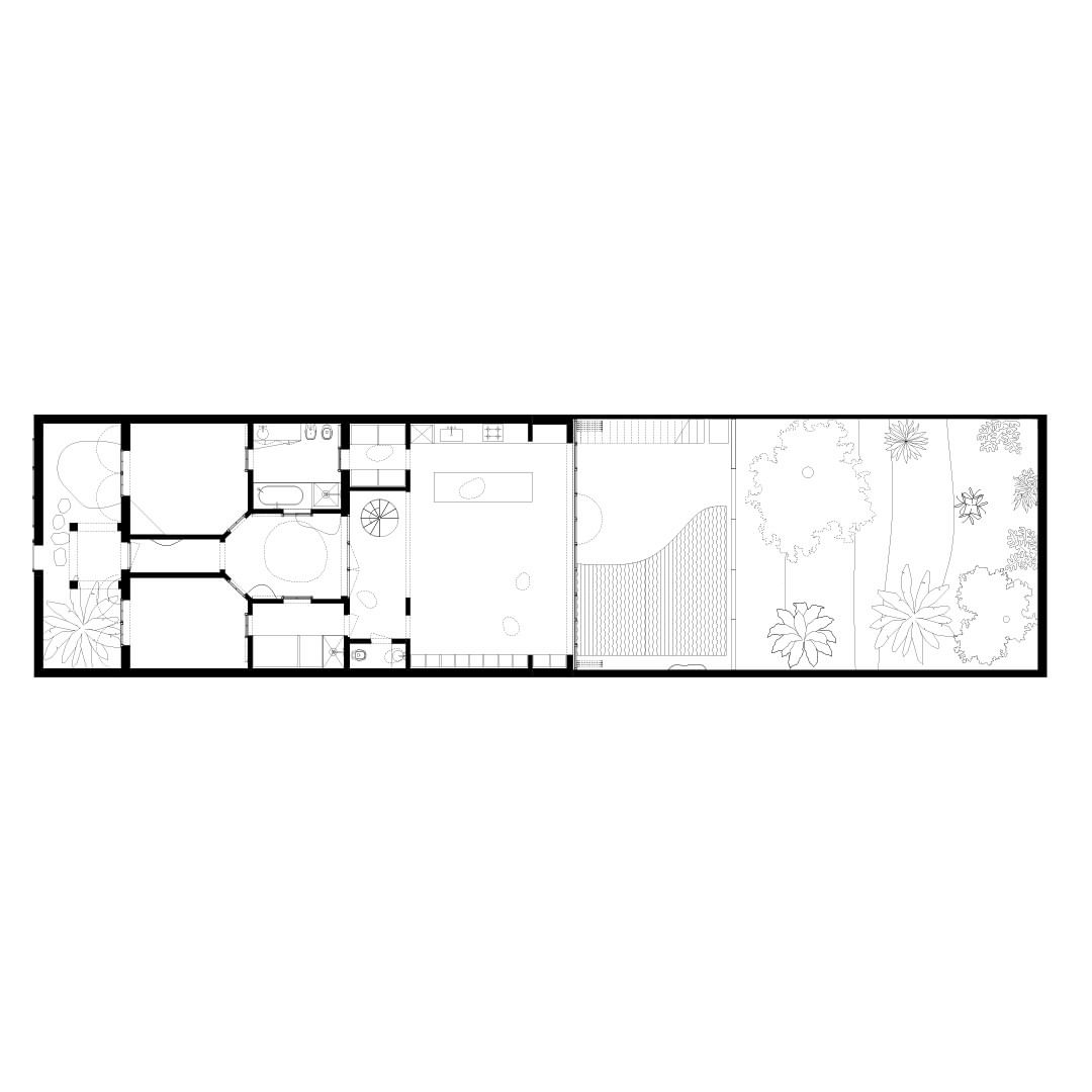
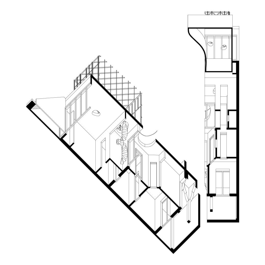
The structure of an old house in ruins is the departing point to build a new inhabited space. Instead of imposing a new logic over the ruin, the project intensifies the spatial conditions of the existing structure. The ruin is not understood as something to be preserved, but as a repertoire of operative strategies that emerged by the effects of abandonment. Its condition is understood as matter that generates the ideas to rebuild itself internalizing in that way architecture biggest fear: decay.

Year

2019-2022

Type

Housing unit

Location

Buenos Aires, Argentina

Status

Built

Surface

340m2

Client

Private

Collaborator(s)

Marcos Asa

Design Team

Santiago Giusto, Nelson Van Campenhout, Marcos Asa, Jorge Godoy, Dario Graschinky

Photography

Javier Agstin Rojas

[ CLOSE ]