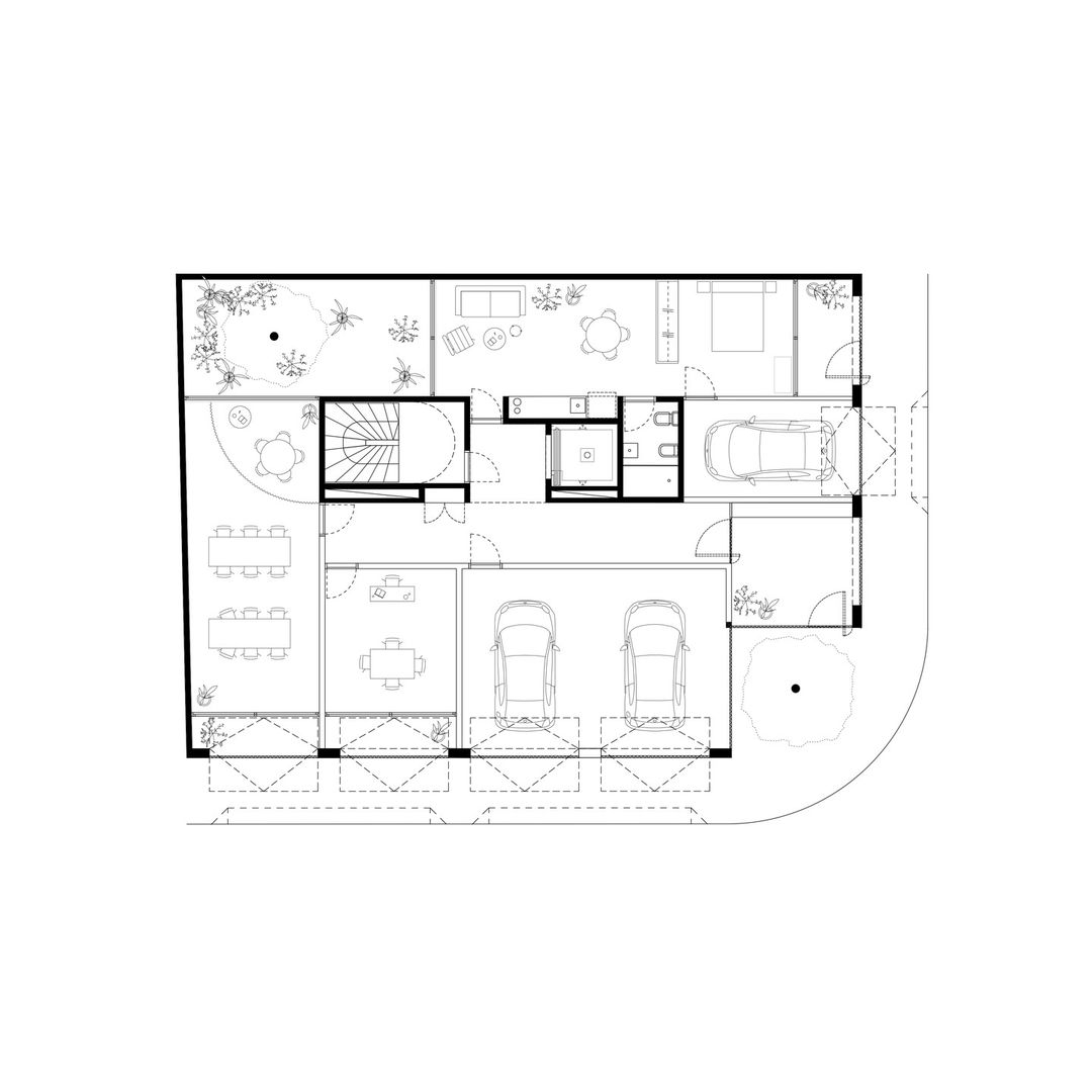
The historic center of Montevideo is undergoing a transformation driven by the low-income housing law, particularly in neighborhoods like Palermo and Barrio Reus Al Sur, which face real estate pressure that could threaten their historical identity. Balancing urban densification with heritage preservation is critical, and architecture can address both needs. The project respects current building regulations while reflecting the local architectural vocabulary. It enhances public life by creating an urban void at the corner, offering space to the public and forming a connection with the Ansina complex. On the ground floor, garages are reinterpreted to establish new links, while the upper floors maintain strong ties to the neighborhood through balconies and terraces. A communal green-roof terrace crowns the building, supporting shared activities.

Year

2022-Ongoing

Location

Montevideo, Uruguay

Status

Under construction

Type

Housing Building

Surface

1360m2

Client

Pres

Collaborator(s)

Adamo-Faiden

Design Team

Santiago Giusto, Nelson Van Campenhout, Sebastian Adamo, Marcelo Faiden, Agustin Fiorito

[ CLOSE ]