HOLLEBEEK, single family house, Linkebeek, Belgium. 2021-2024

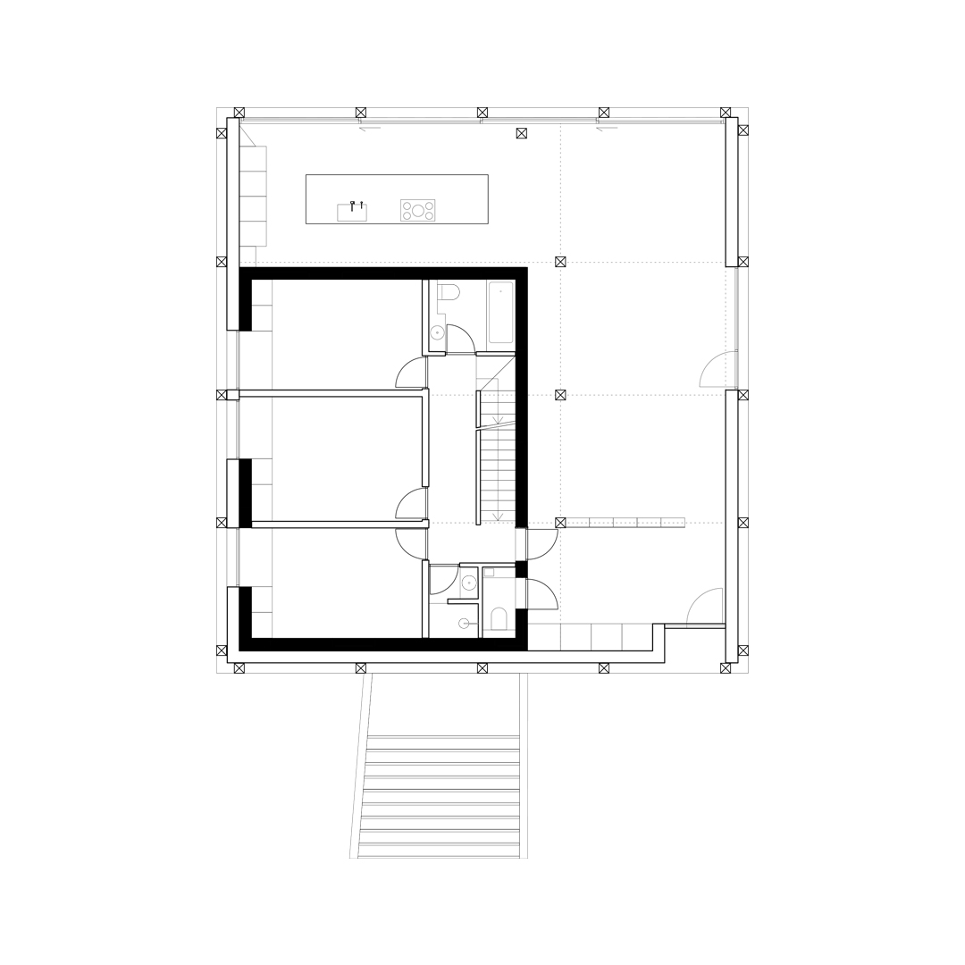
In the south of Brussels, an existing pitched-roof brick house is transformed by wrapping it in a new insulated wooden structure. The original house becomes the "night house," while a new grid of laminated wooden columns and beams forms the structure for the "day house." The north façade facing the street is blind on the ground floor, while the south façade, overlooking the garden, is fully glazed, allowing passive heating on sunny days. All horizontal floors are made of concrete, providing thermal inertia, while all vertical walls are constructed from wood. A shed-like photovoltaic roof covers the new extension, capturing solar energy and collecting rainwater for reuse.

Year

2021-2024

Location

Linkebeek, Belgium

Type

Single Family House

Status

Built

Surface

292m2

Client

Private

Collaborators

Fast Entreprise, Bollinger+Grohmann

Design Team

Santiago Giusto, Nelson Van Campenhout, Elise Duchêne

Photography

Maxime Delvaux

[ CLOSE ]